Galleriet - Galleri Falkum, Skien
Etableres 6 nye leiligheter i tillegg til 2 eksisterende og kontorlokaler

Galleriet
Bare noen meter fra Falkumelva og med drømmeutsikt etableres 6 nye leiligheter fordelt på begge de eksisterende byggene

Flotte uteareal
Det gjøres mye for å oppgradere uteopplevelsen med mer grønt, boder, carport og sykkelparkering

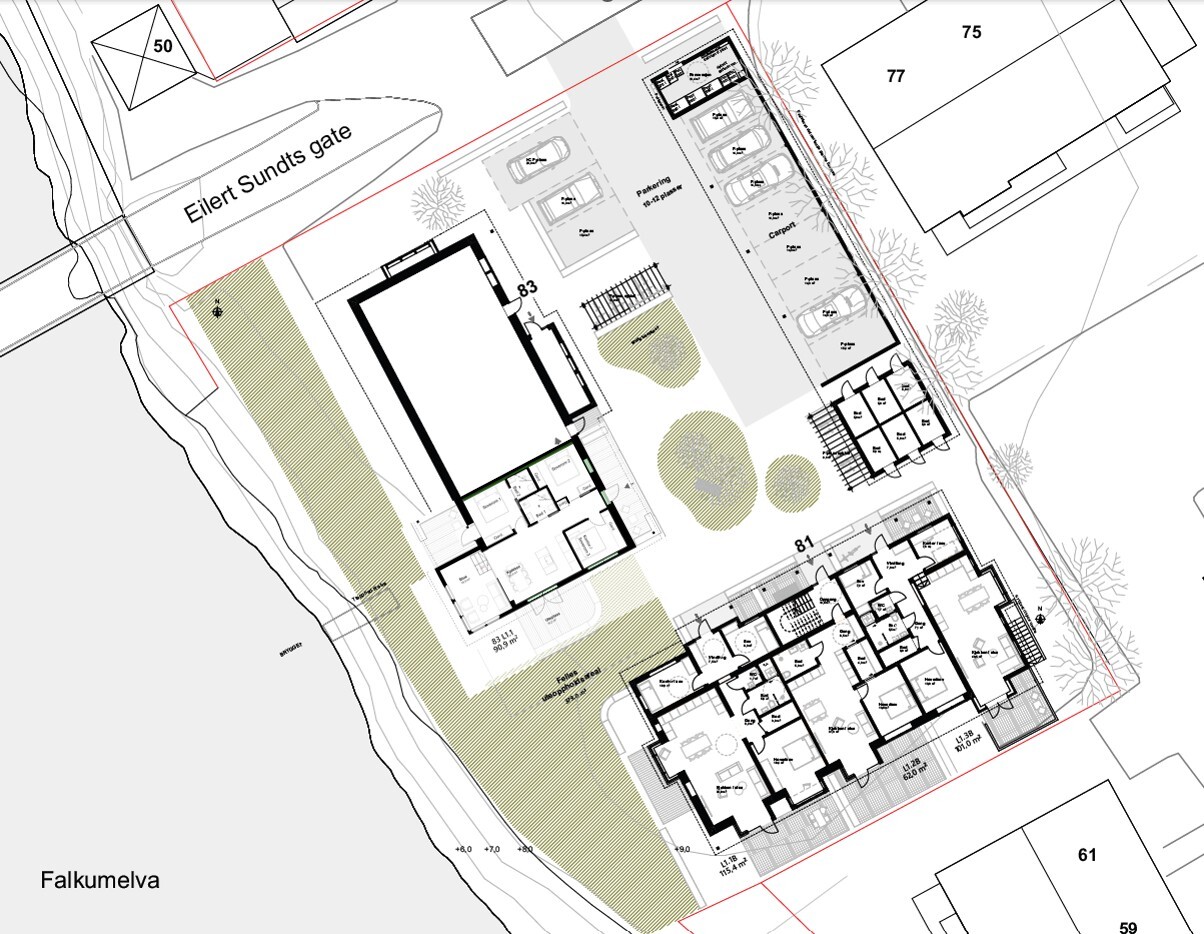
Situasjonsplan
Her ser du begge byggene i rødt og carport og boder

Oversikt
Leilighetene i 1. etasje fordelt på de to byggene
